














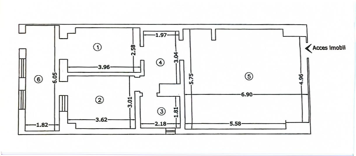
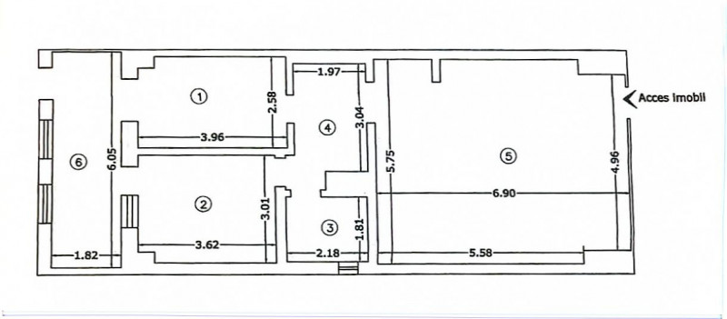
Se ofera spre inchiriere un spatiu decomandat din constructie cu o compartimentare ce permite accesul separat dinspre holul principal catre fiecare din cele 3 incaperi.
Spatiul functioneaza in prezent ca beauty salon până la 1 Decembrie 2025 dar permite si alte activitati datorita amplasarii cu acces direct din bulevardul Lapusneanu (sediul unei societati comerciale, birouri, diverse activitati comerciale).
Spațiul se prezintă în prezent în condiții excelente este ca și nou fara nici o urmă de uzura.
Spațiul reprezintă astfel o Proprietate cu mult potential de bussines adaptabila pentru multiple activitati iar Chiria afișată conține TVA.
Pentru detalii suplimentare, conditii contractuale sau alte informatii apelati Agentul proprietatii Alin 0746103143 pe număr cu WhatsApp.